Nouveauté
190 000 €
Livraison
1er trimestre 2024
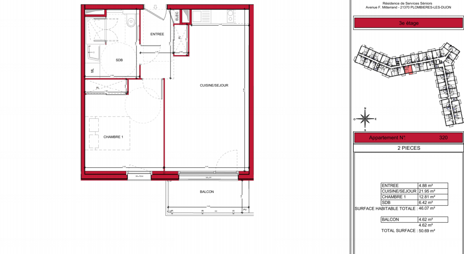
Plombières-lès-Dijon (21370)
Caractérisque
Valeurs
Code postal
21370
Surface habitable (m²)
46,07 m²
Surface loi Carrez (m²)
46,07 m²
Nombre de chambre(s)
1
Nombre de pièces
2
Etage
3
Caractérisque
Valeurs
Nb de salle de bains
1
Cuisine
Américaine
Balcon
OUI
Terrasse
NON
Cave
NON
Exposition
Sud
Caractérisque
Valeurs
Prix de vente honoraires TTC inclus
190 000 €
cette offre vous intéresse ?
Partager le bien
Détail des diagnostics énergétiques
DPE ANCIENNE VERSION