Nouveauté
                
                            
                            Réf : 77100-01-02
                        
                                                    
                                                                                                                                                                184 000 €
                                        
                                                                                                            
                            
                                                                        
                            Livraison
                            
                                    Dernier trimestre 2024
													Caractérisque
													Valeurs
												
											
															Code postal
															
																																	77100
																															
														
																																																				
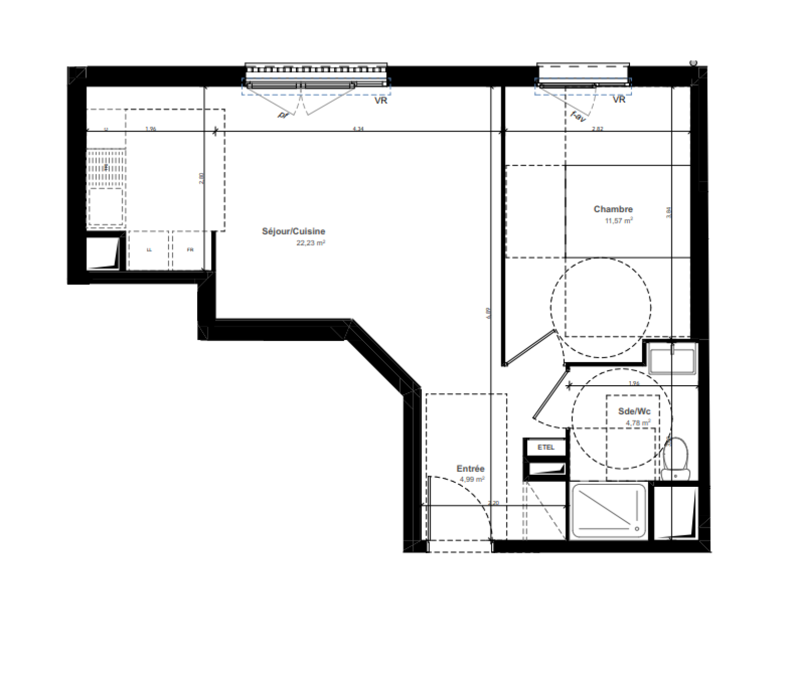
															Surface habitable (m²)
															
																																	41,35 m²
																															
														
																																																				
															Nombre de chambre(s)
															
																																	1
																															
														
																																																				
															Nombre de pièces
															
																																	2
																															
														
																																																				
															Etage
															
																																	3
																															
														
																																				
													Caractérisque
													Valeurs
												
											
															Nb de salle de bains
															
																																	1
																															
														
																																																				
															Cuisine
															
																																	Kitchenette
																															
														
																																																				
															Type de cuisine
															
																																	SEMI-EQUIPEE
																															
														
																																																				
															Exposition
															
																																	Nord
																															
														
																																				
													Caractérisque
													Valeurs
												
											
															Prix de vente honoraires TTC inclus
															
																																	184 000 €
																															
														
																																				cette offre vous intéresse ?
    Partager le bien
    
                    Détail des diagnostics énergétiques
                
                DPE ANCIENNE VERSION
             
                 
                                        