Aller à :

  • Aller à la recherche
  • Aller au menu principal
  • Aller au contenu
0
  • Accueil
  • PROGRAMMES NEUFS
  • FINANCEMENT
    • Simulateur de crédit
    • Comparateur d'assurance
      emprunteur
    • Contacter un
      conseiller en crédit
    • Guide de l'emprunteur
  • RÉUSSIR SON INVESTISSEMENT
    • Investissements locatifs
    • Où acheter?
      Choix du logement
    • Dispositif fiscal
  • CONTACT
0
  1. Accueil
  2. Vente neuf
  3. Melun
  4. Appartement
  5. T2
Coup de coeur
Réf : 77000-01
Appartement
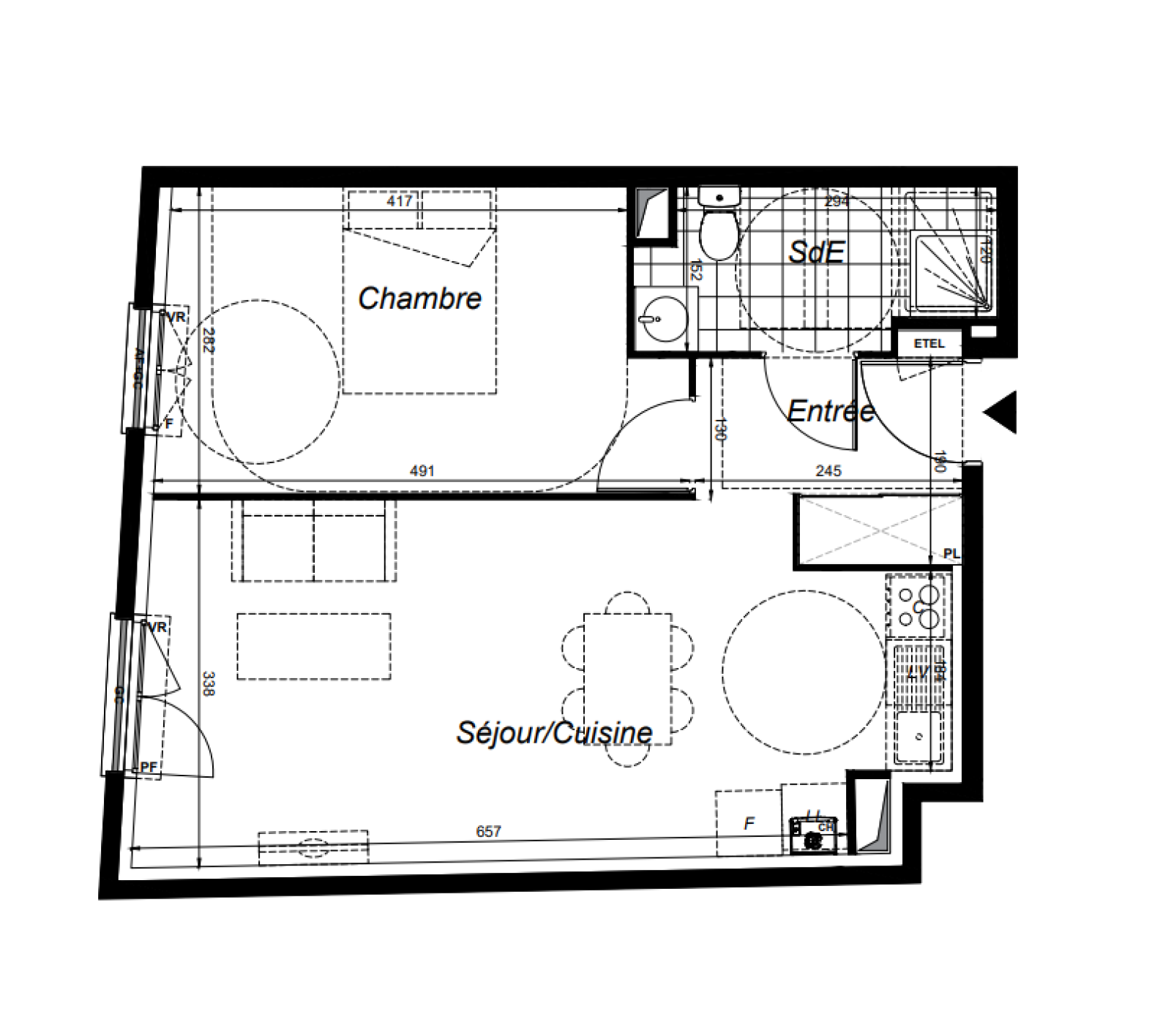
 APPARTEMENT 2 PIECES AU 2 EME ETAGE ORIENTE SUD
Nombre de pièces 2
Nombre de chambres 1
Salle d'eau 1
Nombre de balcons 1
203 000 €
Livraison

Dernier trimestre 2024

 APPARTEMENT 2 PIECES AU 2 EME ETAGE ORIENTE SUD Melun (77000)

PROGRAMME NEUF

Découvrez la Résidence Saint Liesne est idéalement située à proximité du centre-ville et de la gare. EMPLACEMENT IDEAL Une ville historique pleine de charme avec tous les services, commerces, équipements de loisirs ou établissements scolaires de la maternelle aux universités. Une adresse au cour du centre-ville, proche de la gare routière et aussi de la vie quotidienne Melun. Les appartements proposés sont bien agencés pour proposer de beaux espaces à vivre. Pour toutes informations complémentaires, contactez un de nos conseillers commerciaux dès maintenant.


Date de livraison à partir du : 1er trimestre 2024

Les honoraires sont à la charge du vendeur.

  • Général
  • Détails +
  • Financier
  • DPE
  • Quartier
Caractérisque Valeurs
Code postal 77000
Surface habitable (m²) 44,15 m²
Surface loi Carrez (m²) 43,65 m²
Nombre de chambre(s) 1
Nombre de pièces 2
Etage 2
Caractérisque Valeurs
Nb de salle d'eau 1
Cuisine Kitchenette
Type de cuisine SEMI-EQUIPEE
Mode de chauffage Gaz
Type de chauffage Radiateur
Format de chauffage Individuel
Visiophone OUI
Balcon NON
Exposition Sud
Caractérisque Valeurs
Prix de vente honoraires TTC inclus 203 000 €
DPE GES
cette offre vous intéresse ?
Contacter l'agence
01 81 73 03 37

* champs obligatoires

Les informations recueillies sur ce formulaire sont enregistrées dans un fichier informatisé par La Boite Immo agissant comme Sous-traitant du traitement pour la gestion de la clientèle/prospects de l'Agence / du Réseau qui reste Responsable du Traitement de vos Données personnelles.
La base légale du traitement repose sur l’intérêt légitime de l'Agence / du Réseau.
Elles sont conservées jusqu'à demande de suppression et sont destinées à l'Agence / au Réseau.
Conformément à la loi « informatique et libertés », vous pouvez exercer votre droit d'accès aux données vous concernant et les faire rectifier en contactant l'Agence / le Réseau.
Si vous estimez, après avoir contacté l'Agence / le Réseau, que vos droits « Informatique et Libertés » ne sont pas respectés, vous pouvez adresser une réclamation à la CNIL.
Nous vous informons de l’existence de la liste d'opposition au démarchage téléphonique « Bloctel », sur laquelle vous pouvez vous inscrire ici : https://www.bloctel.gouv.fr 
Dans le cadre de la protection des Données personnelles, nous vous invitons à ne pas inscrire de Données sensibles dans le champ de saisie libre
Ce site est protégé par reCAPTCHA, les Politiques de Confidentialité et les Conditions d'Utilisation de Google s'appliquent.

Partager le bien
Nos outils
Imprimer Imprimer
SIMULATION D'EMPRUNT

* Champ obligatoire

Partager l'annonce

* champs obligatoires

Les informations recueillies sur ce formulaire sont enregistrées dans un fichier informatisé par La Boite Immo agissant comme Sous-traitant du traitement pour la gestion de la clientèle/prospects de l'Agence / du Réseau qui reste Responsable du Traitement de vos Données personnelles.
La base légale du traitement repose sur l’intérêt légitime de l'Agence / du Réseau.
Elles sont conservées jusqu'à demande de suppression et sont destinées à l'Agence / au Réseau.
Conformément à la loi « informatique et libertés », vous pouvez exercer votre droit d'accès aux données vous concernant et les faire rectifier en contactant l'Agence / le Réseau.
Si vous estimez, après avoir contacté l'Agence / le Réseau, que vos droits « Informatique et Libertés » ne sont pas respectés, vous pouvez adresser une réclamation à la CNIL.
Nous vous informons de l’existence de la liste d'opposition au démarchage téléphonique « Bloctel », sur laquelle vous pouvez vous inscrire ici : https://www.bloctel.gouv.fr 
Dans le cadre de la protection des Données personnelles, nous vous invitons à ne pas inscrire de Données sensibles dans le champ de saisie libre
Ce site est protégé par reCAPTCHA, les Politiques de Confidentialité et les Conditions d'Utilisation de Google s'appliquent.

Détail des diagnostics énergétiques
DPE GES
DPE ANCIENNE VERSION

Partager avec vos proches

Facebook Facebook
Messenger Messenger
Twitter Twitter
WhatsApp WhatsApp
LinkedIn LinkedIn
Copier le lien Copier le lien
Se connecter
Espace propriétaire
Page d'accueil
Adhérents

© 2025 | Tous droits réservés | Traduction powered by Google |

  • Nos honoraires
  • Plan du site
  • Mentions légales
  • Admin
  • Nos liens
  • Politique RGPD

Comme beaucoup, notre site utilise les cookies

On aimerait vous accompagner pendant votre visite. En poursuivant, vous acceptez l'utilisation des cookies par ce site, afin de vous proposer des contenus adaptés et réaliser des statistiques !

Paramétrer

Statistiques de visites

Pour améliorer votre expérience, on a besoin de savoir ce qui vous intéresse !
Les données récoltées sont anonymisées.

?

Google Analytics

requis
?

Google Tag Mananger

requis
En savoir plus

Faites estimer votre bien par un professionnel

Estimer votre bien